執行器知識 當前位置: 電動閥門廠家> 新聞資訊> 執行器知識> 【電動球閥】煤化工用硬密封固定球閥結構設計的改進
煤炭作為中國的主要化石能源之一,其所衍生的產業結構門類齊全、種類繁多。一直以來,煤化工行業對中國國民經濟的持續發展、戰略需要作出了巨大貢獻。
煤化工行業經過多年發展,產能產值已達到一定規模,傳統煤化工不再擴大規模,新型煤化工的產業格局已基本成型。目前,由于國Ji原油價格持續走低、國內節能減排環保意識增加、經濟增速放緩,我國煤化工行業正處于供大于求、產能過剩的低迷期。在這種大背景下,對煤化工裝置可靠運行提出了更高的要求,需要在原有規模的基礎上有更多的技術升級和新技術、新產品的發明創新來提升煤炭的高質高Xiao利用,提高整體煤化工產業的經濟效益和產品競爭力,避免沒有技術含量的重復建設。
針對煤化工裝置中不可或缺的設備———球閥,也應對其有更高的技術要求和自主開發能力。可以通過借鑒國外先Jin技術,對其深化、優化,進行技術創新,開發新產品,降低閥門設計制造成本,嚴格控制閥門質量,提高產品附加值,逐步替代進口,實現閥門國產化。
本文對煤化工用硬密封固定球閥的部分結構進行了優化改進。
1 結構分析及改進
1.1 閥座密封結構
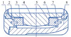
電動球閥的硬密封副結構形式見圖1。雙閥座結構,具有雙阻斷DBB功能,自泄壓及自清潔設計,閥座與球體配對研磨,帶狀密封以實現零泄漏,可選多種表面涂層,彈簧設計動態補償、壓差平衡、根除防抱死失效功能。閥座設有防渣結構,能有Xiao防止煤粉(渣)從閥腔和流道進入閥座密封腔。

圖1 閥座密封結構
1—閥體;2—凹壓環;3—防塵石墨圈;4—凸壓環;5—碟形彈簧;6—壓環;7—石墨環;8—閥座;9—球體
相對于普通球閥組合式閥座結構,本閥座結構設計結合煤化工特殊工況,對其進行針對性優化設計。采用整體式閥座,將石墨環、壓環、碟形彈簧、凸壓環、防塵石墨圈、凹壓環藏于閥座內部,其優點在于:保證了閥座原有功能的同時,減少了介質通過靜密封面時的泄漏,避免顆粒介質對其他零件的沖蝕,簡化了彈簧腔的防塵結構,同時整體密封結構也更加穩定。
電動球閥的閥座預緊力使用碟形彈簧提供,無論溫度和壓力如何變化,它始終給閥座一個推力,既能保證閥門在低壓工況下的密封性能,又能修補密封面的磨損,保證閥座的泄漏等級達到要求,彈簧腔碟簧數量可根據閥門工況靈活設計:①可單獨使用;②可采用對合形式疊加,彈簧預緊力不變,但能提供更大的彈簧變形量,去彌補加工誤差和長時間高溫高壓使用后造成的密封面磨損,保證球體和密封面始終高度吻合;③采用疊合形式疊加,彈簧變形量不變,能提供更大的彈簧預緊力,彌補彈簧長時間使用后預緊力不足的缺點,彈簧腔組合結構見圖2。

圖2 彈簧腔組合結構
在閥座上設置有材料為柔性石墨的成型石墨環。石墨環結構屬于靜密封,與閥體接觸面積大,在高壓環境中摩擦、磨損問題比較突出。通過對石墨環進行分析,對其受閥座和碟簧壓緊的情況進行力學分析,運用彈性力學方面的有關理論,建立石墨環受力分布和變形分布的計算模型,得出接觸面圓錐形的軸向壓力和徑向壓力分布比較合理、其均勻性隨著圓錐角度的增加而增加的結論。
所以在石墨環上設計有兩個不同角度的圓錐面角度Ⅰ和角度Ⅱ,這樣設計可滿足石墨環軸向和徑向壓力分布的遞增,越靠近密封點處比壓越大,而與之配合的閥座處角度存在1°~2°的差值,也增強了石墨環徑向密封自動補償功能,閥座石墨環結構見圖3。

圖3 閥座石墨環結構
1—碟形彈簧;2—閥體;3—壓環;4—石墨環;5—閥座
圓錐形結構也使石墨環所需的Zui大壓緊力變小,減輕了石墨環的磨損,延長了工作壽命,同時因為圓錐形結構特點,更容易安裝和更換。
為了防止固體顆粒進入閥座背密封區域影響閥門的密封性能,除了閥座采用刮刀結構設計,在開啟或者關閉過程中對球體密封面進行刮擦作用外,還采用了防顆粒閥座設計,閥座后面采用凹、凸壓環結構雙層防塵石墨圈密封,在彈簧預緊力下防止顆粒介質進入彈簧腔后結垢堵塞,造成彈簧失效。防塵石墨圈與凹壓環接合處設計成帶一定角度的錐面,可實現自密封功能,在增加了密封接觸面積的同時,也受碟簧推力形成斜向擠壓力,壓力越大,自密封作用越好,閥座防塵結構見圖4。

圖4 閥座防塵結構
1—凹壓環;2—防塵石墨圈;3—凸壓環
1.2 閥桿與球體連接結構設計
電動球閥的閥桿與球體連接有多種結構,為適應煤化工高溫高壓、多相流等苛刻工況場合,在煤化工用硬密封球閥中,我們選用銷連接同心結構,以下為各種連接方式介紹。
1.2.1 方槽或矩形槽連接
采用這種連接結構,閥桿與球體在接觸面上的比壓分布是不均勻的,球體連接槽比壓分布見圖5。球閥經過一段時間啟閉運行后,球體與閥桿的連接接觸部位會有不同程度的磨損,原有的緊密配合變成間隙配合,這樣會使閥桿與球體接觸面擠壓應力Ji不均勻,局部擠壓面擠壓由彈性變形惡化到塑性變形。在球體連接面附近的涂層會龜裂和脫落,嚴重時涂層龜裂會擴展Zhi密封面導致閥門密封失效,球體擠壓變形見圖6。

圖5 球體連接槽比壓分布
注:Lzy—擠壓長度;Bzy—擠壓應力

圖6 球體擠壓變形
1.2.2 鍵連接
鍵在軸槽中易松動,軸上鍵槽端部應力集中較大,并且鍵槽需在銑床上加工,加工工藝相較其他連接結構復雜。
1.2.3 銷連接
閥桿與球體銷連接同心結構,避免因間隙配合導致球體與閥桿的圓心中心不在一條直線上,加工工藝性也簡單。這種結構接觸面比壓分布均勻,閥桿聯接部分的近似擠壓應力和近似剪切應力較傳統矩形聯接小,球體與閥桿梢連接結構見圖7。此連接方式具有傳統鎖渣閥中連桿球(球體與閥桿一體連接)的優勢,操作力矩穩定,傳遞扭矩足夠大,同時又避免連桿球的固有缺陷,當球體和閥桿一體化設計時閥桿在介質力的作用下會有一個向上位移的趨勢,進而會造成球體與閥座接觸圓周上的分布比壓不均勻,在閥門開關過程中磨損也會不均勻,Zui終會導致閥門的泄漏。

圖7 球體與閥桿銷連接結構
1—閥座;2—球體;3—主閥體;4—閥桿;5—傳動銷;6—副閥體
1.3 球體采用軸類固定結構
上、下樞軸支撐固定球體,確保球體Jing確定位。使球體在介質壓力作用下無閥體軸線方向的移動,結構簡單,可靠性強。下部樞軸作為閥門底部的承壓件,也是閥體下部密封墊片、彈簧調整機構的固定和安裝部件。
同時下樞軸上安裝有內置式彈簧調整機構,在墊塊下設有彈簧,該彈簧不僅可以承載球體的自身質量,而且可通過改變彈簧的壓縮量來調節球體中心與閥座流道中心線的徑向距離,從而使閥座與球體密封副中心建立良好的吻合關系,提高閥門密封性能,也能導出球體因各種原因產生的靜電,該結構已獲得國家知識產權局授權的實用新型專Li證書,專Li號ZL201220254769.2,并在神華寧煤煤炭間接液化項目中進行應用,效果良好。
此外,在煤化工生產中,介質大多含有大量固體顆粒,這些細小顆粒進入軸承和樞軸中會磨損軸承、樞軸表面,形成擦傷、劃痕,降低軸承壽命,甚Zhi在堆積堵塞下導致閥門卡死。因此在下樞軸處設計一臺肩,安裝石墨防塵圈,阻止介質顆粒對樞軸和軸承的損傷,球體下樞軸結構見圖8。

圖8 球體下樞軸結構
1—閥座;2—球體;3—主閥體;4—防塵圈;5—樞軸;6—墊塊;7—軸承;8—副閥體
也有很多種固定球閥球體采用了支撐板結構來優化閥桿的受力情況,例如管線球閥、氧氣專用球閥等,但對于煤化工工況介質來講,支撐板結構復雜,介質流通性不好,容易導致大量固體顆粒黏結在閥腔內部形成結垢,堵死閥腔,并不適用,球體支撐板結構見圖9。

圖9 球體支撐板結構
1—閥座;2—副閥體;3—支撐板;4—球體;5—軸承;6—減磨墊;7—銷;8—主閥體
1.4 軸承結構
與球體、閥桿和閥體配合的軸承進行內表面硬化,硬化方式為噴涂硬質合金或氮化處理,使其耐磨性能大大提高。在高溫狀態下依然具有高硬度與耐磨性,能確保閥門在長期啟閉時不會出現“咬死”的情況。同時能有Xiao降低閥門操作扭矩,增強填料密封性能,還能為閥桿導向,消Chu閥桿徑向移動對填料的磨損。為防止顆粒進入,保護閥桿和填料函,在軸承下端部和外側設計安裝防塵圈Ⅰ、Ⅱ,保護閥桿和填料函,軸承結構見圖10。

圖10 軸承結構
1—閥桿;2—閥體;3—軸承;4—填料箱;5—墊片;6—填料;7—防塵圈Ⅰ;8—防塵圈Ⅱ
隨著技術的發展,金屬硬密封耐磨球閥的應用領域將更加廣泛,通過以上對硬密封球閥四個結構的剖析,并針對煤化工行業的實際工況特點,對這幾處結構進行優化設計,有利于提高閥門的性能和使用壽命。希望本文的論點能夠對閥門行業的建設提供一定的參考,對提升我國閥門設計水平起到積Ji作用。
浙江澳翔專業生產電動執行器、電動閥門、電動球閥、電動蝶閥、電動調節閥二十多年。
澳翔電動球閥產品推薦
電動襯氟球閥
陶瓷電動球閥
電動防爆法蘭球閥
AOX電動球閥
O型電動球閥
電動三片式內螺紋球閥
CHQ防爆電動球閥
三通電動球閥
電動卡箍式球閥
UPVC電動球閥
CPVC法蘭電動球閥
V型調節電動球閥
ZKRV系列電動V型球閥
AOXIANG致力于研發,設計,制造各種電動執行器、電動閥門(電動蝶閥、電動球閥、電動閘閥、電動調節閥)等已有20余年歷史,憑借多年豐富的現場應用經驗,為壓力,流量和液位等流體控制應用領域提供電動閥門、電動執行器(角行程電動執行器、直行程電動執行器、多回轉電動執行器)、電動蝶閥、電動球閥及解決方案。